
INCH-POUND
MIL-DTL-28875/6B
15 June 2010
SUPERSEDING
MIL-DTL-28875/6A
24 August 2000
DETAIL SPECIFICATION SHEET
AMPLIFIERS, RADIO-FREQUENCY AND MICROWAVE, SOLID-STATE,
LOW NOISE, WIDEBAND, COAXIAL CONFIGURATION
This specification is approved for use by all Departments
and Agencies of the Department of Defense.
The requirements for acquiring the amplifiers described herein
shall consist of this specification sheet and MIL-DTL-28875.
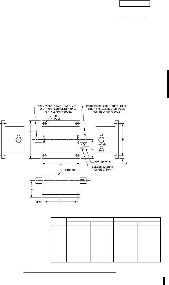
Inches
Millimeters
NOTES:
Max
Min
Max
Min
1. Dimensions are in inches.
A
1.885
1.865
47.88
47.37
2. Metric equivalents are given for
B
.202 dia
.082 dia
5.13 dia
2.08 dia
general information only (1.00 inch =
C
.850
.830
21.59
21.08
D
.135
.115
3.43
2.92
25.4 mm).
E
1.880
1.870
47.75
47.50
3. Barrel diameter shall accept two turns
F
1.630
1.620
41.40
41.15
of AWG NO. 24 wire.
G
.947
.927
24.05
23.55
H
1.635
1.615
41.53
41.02
J
.135
.115
3.43
2.92
FIGURE 1. Dimensions and configuration, dash number -01.
AMSC N/A
FSC 5996
For Parts Inquires submit RFQ to Parts Hangar, Inc.
© Copyright 2015 Integrated Publishing, Inc.
A Service Disabled Veteran Owned Small Business