
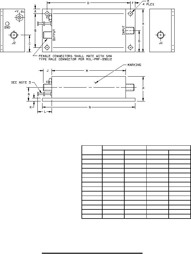
MIL-DTL-28875/6B
Inches
Millimeters
Max
Min
Max
Min
A
.27
.23
6.9
5.8
B
1.385 typ
1.365 typ
35.18 typ
34.67 typ
C
.71
.67
18.0
17.0
D
3.385
3.365
85.98
85.47
E
.166 dia
.146 dia
4.22 dia
3.71 dia
F
.21
.17
5.3
4.3
G
.90
.86
22.9
21.8
H
1.77
1.73
45.0
43.9
J
.42 typ
.38 typ
10.7 typ
9.7 typ
K
.14
.10
3.6
2.5
L
.59
.55
15.0
14.0
M
3.02
2.98
76.7
75.7
N
3.77
3.73
95.8
94.7
P
1.02
.98
25.9
24.9
NOTE:
1. Dimensions are in inches.
2. Metric equivalents are given for general information only (1.00 inch = 25.4 mm).
3. Barrel diameter shall accept two turns of AWG NO. 24 wire.
FIGURE 2. Dimensions and configuration, dash number -02.
2
For Parts Inquires submit RFQ to Parts Hangar, Inc.
© Copyright 2015 Integrated Publishing, Inc.
A Service Disabled Veteran Owned Small Business